• YEAR :
  • LOCATION :
  • CATEGORY :
  • CREATIVE DIRECTOR :
  • VISUALIZATION :
  • Sociale :
  • Residenziale : Residenziale
RESIDENZIALI

Complesso Plurifunzionale

ANNO

2007

LUOGO

Mozzate (Como)

ARCHITETTO

Giovanni Sammartano

TAVOLE

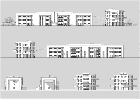
Il movimento è l’anima di questo intervento. Movimento viabilistico in quanto l’area in cui insiste l’intervento è collocata in fregio ad una via di importante collegamento ed una secondaria di quartiere.

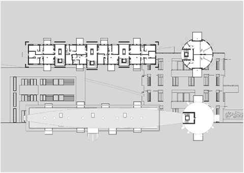
Movimento degli elementi architettonici che convivono in questo progetto e che lo spingono verso una scelta architettonica di tipologia residenziale a “stecca “ con annessa “torre isolata” adibita ad uffici. La volontà di localizzare l’edificio circolare in fregio alla via più importante nasce dal fatto di volersi attestare nei confronti di tale via in maniera forte, facendo leggere che l’esistente si stà trasformando.

Progettato secondo dei caratteri architettonici che tengono in considerazione degli aspetti di ombreggiamento passivo e allo stesso tempo di Architettura in movimento, la facciata risulta caratterizzata dai grandi aggetti laterali delle terrazze, e dai frangisole metallici di diversa lunghezza posizionati sopra le finestre. I grandi pannelli esterni avranno sia funzione strutturale delle scale che di contenimento degli impianti fotovoltaici e solari.

L’intera piantumazione del verde è stata progettata in armonia con il contesto e con piante autoctone, a foglia caduca, che posizionate a sud, tenderanno a ombreggiare la facciata nei mesi estivi, per poi invece lasciarla esposta al sole durante i mesi più freddi.